
Trong xây dựng dân dụng, móng băng là loại móng phổ biến nhờ khả năng phân bổ tải trọng đều và đảm bảo sự ổn định cho công trình. Vậy móng băng là gì, có cấu tạo ra sao, ưu nhược điểm thế nào và thường được ứng dụng ở đâu? Bài viết sau đây của Bê Tông Tươi Mê Kông Thương Tín sẽ giúp bạn hiểu chi tiết về móng băng để có giải pháp nền móng phù hợp và bền vững cho công trình.
Móng băng là gì?
Móng băng là loại móng có dạng dải dài, thường được đặt dưới các hàng cột hoặc tường chịu lực để phân tán tải trọng từ công trình xuống nền đất. Với chiều dài lớn hơn nhiều so với chiều rộng, móng băng giúp giảm áp lực lên đất nền, đảm bảo độ ổn định và an toàn cho công trình. Loại móng này đặc biệt phù hợp với các công trình trên nền đất yếu hoặc đất có độ lún không đều, nơi địa chất thường bao gồm đất sét mềm hoặc đất bùn.

Tổng quan móng băng trong xây dựng
Móng băng được thiết kế để chịu lực đều hoặc không đều, tùy thuộc vào cấu trúc công trình và điều kiện địa chất. Với chi phí hợp lý và tính ứng dụng cao, đây là lựa chọn lý tưởng cho nhiều loại công trình từ dân dụng đến công nghiệp.
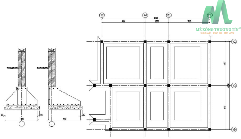
Cấu tạo móng băng chi tiết
Móng băng có cấu tạo đơn giản nhưng chắc chắn, bao gồm các thành phần chính được thiết kế để đảm bảo độ bền và khả năng chịu lực.

Bản vẽ kỹ thuật móng băng với cốt thép và lớp bê tông
Bố trí cốt thép trong móng băng
- Thép dọc: Được đặt dọc theo chiều dài móng, có đường kính từ 12mm đến 25mm, chịu lực kéo và nén từ tải trọng công trình.
- Thép ngang: Bố trí vuông góc với thép dọc, thường có đường kính từ 10mm đến 16mm, giúp tăng khả năng chịu lực cắt và chống nứt.
- Thép đai: Liên kết thép dọc và thép ngang, có đường kính từ 6mm đến 8mm, đảm bảo khung thép ổn định và chắc chắn.
- Lớp bảo vệ thép: Bê tông bao bọc cốt thép với độ dày tối thiểu 50mm để ngăn chặn ăn mòn do môi trường.
Bố trí cốt thép cần được thực hiện chính xác theo bản vẽ thiết kế và tiêu chuẩn kỹ thuật để đảm bảo khả năng chịu lực tối ưu.
Vật liệu sử dụng trong móng băng
- Bê tông: Sử dụng bê tông tươi với mác từ 200 đến 300, đảm bảo độ bền và khả năng chịu lực. Bê tông tươi chất lượng cao giúp móng bền vững và ít bị nứt.
- Cốt thép: Thép đạt tiêu chuẩn TCVN, đảm bảo độ bền kéo và khả năng chống uốn, phù hợp với các loại tải trọng khác nhau.
- Vật liệu lót: Lớp bê tông lót mác thấp (100-150) được sử dụng để tạo mặt phẳng và bảo vệ cốt thép khỏi tác động của đất nền.
Lựa chọn vật liệu chất lượng từ các nhà cung cấp uy tín là yếu tố quan trọng để đảm bảo độ bền lâu dài cho móng băng.
Tiêu chuẩn kỹ thuật khi thi công móng băng
- Khảo sát địa chất: Xác định sức chịu tải của đất nền để thiết kế kích thước và độ sâu móng phù hợp.
- Độ sâu móng: Móng băng cần được đặt ở độ sâu tối thiểu để tránh lún hoặc sụt đất, thường từ 0,8m đến 2m tùy điều kiện địa chất.
- Kiểm tra cốt thép: Đảm bảo cốt thép được bố trí đúng vị trí, không lệch lạc trước khi đổ bê tông.
- Quy trình đổ bê tông: Đổ bê tông liên tục, sử dụng máy đầm để tránh hiện tượng rỗ hoặc phân tầng, đảm bảo tính đồng nhất.
Có thể bạn quan tâm: Độ chối của cọc là gì? Cách xác định & những yếu tố ảnh hưởng
Phân loại móng băng phổ biến hiện nay
Móng băng được phân loại dựa trên phương chịu lực, độ sâu và cấu trúc, đáp ứng các yêu cầu khác nhau của công trình.
Móng băng 1 phương
- Đặc điểm: Chịu lực theo một hướng, thường đặt dưới các dãy cột hoặc tường theo một trục nhất định.
- Ứng dụng: Phù hợp với nhà cấp 4, nhà phố hoặc các công trình nhỏ có tải trọng đơn giản.
Móng băng 2 phương
- Đặc điểm: Chịu lực theo cả hai hướng (trục X và Y), được thiết kế cho các công trình có tải trọng phức tạp hơn.
- Ứng dụng: Áp dụng cho nhà cao tầng, nhà xưởng hoặc công trình công nghiệp có tải trọng lớn.
Phân loại theo độ sâu (nông, sâu)
- Móng băng nông: Đặt ở độ sâu nhỏ (thường dưới 1m), phù hợp với nền đất có sức chịu tải tốt, như đất cát hoặc đất sét cứng.
- Móng băng sâu: Đặt ở độ sâu lớn hơn (trên 1,5m), sử dụng cho nền đất yếu, đất bùn hoặc đất ngập nước.
Phân loại theo cấu trúc (liên tục, độc lập)
- Móng băng liên tục: Kéo dài dưới toàn bộ tường hoặc dãy cột, đảm bảo phân tán tải trọng đều trên diện tích lớn.
- Móng băng độc lập: Được thiết kế riêng lẻ dưới từng cột hoặc cụm cột, phù hợp với công trình có khoảng cách cột lớn.
Đừng bỏ lỡ: Chiều cao đổ bê tông bao nhiêu là hợp lý? Quy định & tiêu chuẩn cần biết
Ưu điểm và nhược điểm của móng băng
Ưu điểm
- Khả năng chịu tải tốt: Phân tán tải trọng đều trên diện tích lớn, phù hợp với nền đất yếu hoặc không đồng đều.
- Chi phí hợp lý: So với móng cọc hoặc móng bè, móng băng có chi phí thi công thấp hơn, đặc biệt cho công trình nhỏ và vừa.
- Dễ thi công: Cấu trúc đơn giản, dễ thực hiện, không yêu cầu thiết bị quá phức tạp.
- Tính ổn định cao: Giảm nguy cơ lún lệch, đảm bảo an toàn và độ bền cho công trình.
Nhược điểm
- Phụ thuộc vào nền đất: Yêu cầu đất nền có sức chịu tải tốt, nếu không cần gia cố thêm bằng cọc hoặc các biện pháp khác.
- Hạn chế với công trình lớn: Không phù hợp với các công trình siêu cao tầng hoặc có tải trọng quá lớn.
- Nguy cơ nứt móng: Nếu thi công không đúng kỹ thuật hoặc sử dụng vật liệu kém chất lượng, móng có thể bị nứt hoặc lún.

Móng băng 1 phương và móng băng 2 phương là hai loại móng băng phổ biến
Khám phá ngay: Bê tông là gì? Tìm hiểu đặc điểm, phân loại và ứng dụng trong xây dựng
Ứng dụng thực tế của móng băng
Móng băng được sử dụng rộng rãi trong nhiều loại công trình nhờ tính linh hoạt và hiệu quả:
- Nhà dân dụng: Nhà phố, biệt thự, nhà cấp 4 sử dụng móng băng để tiết kiệm chi phí và đảm bảo độ bền.
- Công trình công nghiệp: Nhà xưởng, kho bãi tận dụng móng băng để chịu tải trọng từ máy móc và thiết bị.
- Công trình công cộng: Trường học, bệnh viện, hoặc các tòa nhà thấp tầng sử dụng móng băng để đảm bảo ổn định.
- Cải tạo công trình: Móng băng được áp dụng khi nâng cấp hoặc mở rộng công trình hiện có, giúp phân tán tải trọng hiệu quả.

Công trình dân dụng được sử dụng móng băng
Sử dụng bê tông tươi chất lượng cao trong thi công móng băng là yếu tố quan trọng để đảm bảo độ bền và khả năng chịu lực, đặc biệt trong điều kiện địa chất phức tạp tại TP.HCM.

Ứng dụng móng băng với bê tông tươi chất lượng cao từ Mê Kông Thương Tín
Xem ngay: Móng cốc là gì? Cấu tạo, tiêu chuẩn và quy trình thi công
Móng băng là giải pháp nền móng hiệu quả, được ưa chuộng trong nhiều loại công trình nhờ khả năng chịu tải tốt, chi phí hợp lý và dễ thi công. Hiểu rõ móng băng là gì, cấu tạo, phân loại và ứng dụng sẽ giúp bạn lựa chọn giải pháp phù hợp cho dự án của mình. Để đảm bảo chất lượng công trình, việc sử dụng vật liệu chất lượng và thi công đúng kỹ thuật là vô cùng quan trọng. Hãy liên hệ Mê Kông Thương Tín ngay hôm nay để được tư vấn và cung cấp bê tông tươi chất lượng cao, giúp công trình của bạn vững chắc, an toàn và bền bỉ theo thời gian.















